Direccion

French 99 - Avellaneda

Telefono

(011) 4720-9750

Whatsapp

1139535714

Volver

Volver al listado

Oportunidad

Venta en Pozo excelente Duplex 5 ambientes

direccion Marconi 573, Avellaneda

Venta

USD 245.000

Características
tipo Dúplex/tríplex
ambiente más de 4 ambientes
dormitorio 3 dormitorios
suite 1 dormitorio en suite
baños 2 baños
toilet 1 toilette
patio Con patio
parrilla Con parrilla
superficie Sup. cubierta 125m2
superficie Sup. total 160m2
superficie 12 pisos
antiguedad Antigüedad: En construcción
Acerca de la propiedad

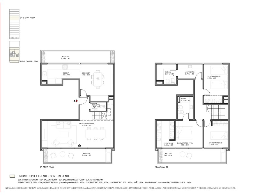
VENTA EN POZO DE Duplex de 5 Ambientes 

Luminoso Duplex de 5 Ambientes, 2 pisos completo, el mismo se compone:
Amplio living comedor, cocina, toilettebaño completo,  balcon en ambos frentes
segunda planta 3 habitaciones, 2 baños y balcon al frente.

El edificio cuenta con salón de usos múltiples y patio común.

Ubicado en Avellaneda centro. 
VALOR CONTADO  U$S 245.000  ----9°  °PISO AL FRENTE 125m2 mas balcones


Perteneciente a Excelente edificio en construccion 
MARCONI 573
Este proyecto en Avellaneda consta de 13 unidades distribuidas en 11 pisos, compuesto de  un estudio profesional, seis monoambientes, cuatro 3 ambientes, un duplex de 5 ambientes y un triplex de 4 ambientes. 
  
Fecha de entrega: mediados de 2025
Puertas de chapa doble, inyectada, en accesos a las unidades
Carpinterías de aluminio línea A30 con DVH
Revoque exterior proyectado 3 en 1
Ascensor de última generación. Cabina de acero inoxidable
Pisos de porcelanato en todos los ambientes de primera marca 
Revestimientos cerámicos en baños y cocinas
Artefactos de baño losa Roca Módena
Grifería en baños y cocina; marca FV
Horno y anafe electrico
Mesada de cocina en granito
Muebles completos en cocina y frentes de placares
Telefonía, TV y datos: canalización en todas las unidades preparadas para la conexión del servicio
Caldera Dual en 3,4 y 5 ambientes
Termotanque eléctrico en monoambientes
Calefacción por radiadores en 3,4 y 5 ambientes
Cañerías de provisión de agua fría y caliente materializadas con sistema de termofusión
Desagüe cloacales y pluviales con sus respectivas ventilaciones
Electricidad: con todas las medidas de seguridad correspondientes
Se entrega una preinstalación de aire acondicionado: el lugar destinado para colocación de los equipos exteriores, el tendido de cañerías vacías y los desagües. No se entregarán ni equipos interiores ni equipos exteriores


Las superficies indicadas son a mero título informativo. No reflejan necesariamente con precisión la realidad “de hecho” del inmueble ni las que surgen de los títulos y planos correspondientes.

Inmobiliaria Lilliana Palumbo 
4222-9929
113953-5714

Desarrollo. Proyecto y Direccion 
Estudio  +arqs  (@masarqs)

Construye
HABITAR OBRA 
(@habitar_obra)

Ubicación
Consultar por propiedad
Venta En Pozo Excelente Duplex 5 Ambientes
Venta
USD 245.000

Comunicate con nosotros

error

error

error

error


Propiedades relacionadas
Chatea con nosotros situacion
contacto No dudes en contactarte con nosotros contacto
Whatsapp WHATSAPP telefono LLAMAR
Comunicate con nosotros

error

error

error

error